Ustroń

Mieszkanie na sprzedaż

Opis nieruchomości

Leśny Zakątek w Ustroniu – idealne miejsce na Twój nowy adres ! 

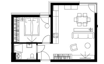
Zapraszamy do zapoznania się z wyjątkową ofertą mieszkania dwupokojowego o powierzchni 45,07 m², składającego się z przestronnego salonu z aneksem kuchennym, sypialni, łazienki oraz przedpokoju. 
Mieszkanie znajduje się w nowo powstałej inwestycji deweloperskiej Leśny Zakątek w Ustroniu, położonej tuż przy lesie, w malowniczej dolinie rzeki Wisły. To miejsce łączy w sobie komfort nowoczesnego osiedla z urokiem zielonego otoczenia, tworząc idealne warunki dla osób ceniących bliskość natury, wygodę i aktywny tryb życia.

Informacje techniczne, m.in.: 

  • budynek mieszkalny wielorodzinny, zbudowany w technologii tradycyjnej, murowanej

  • niska zabudowa – wysokość budynku do 12 m

  • dach dwu- lub wielospadowy (nachylenie 30–40°)

  • 58 lokali mieszkalnych w budynku

  • zagospodarowany teren osiedla z dużym udziałem zieleni, 

  • minimalny odstęp pomiędzy budynkami - 20m

  • możliwość zainstalowania klimatyzacji

  • wentylacja mechaniczna

  • wykończenie balkonów - płytki układane metodą bez klejową

  • miejsca postojowe przewidziane na terenie inwestycji ( konieczność zakupienia min. 1 miejsca postojowego - 10 000 zł)

Media i instalacje: 

  • woda – z sieci miejskiej

  • kanalizacja sanitarna – miejska

  • energia elektryczna – z sieci

  • gaz – z sieci gazowej

  • ogrzewanie – indywidualne podłogowe gazowe, energooszczędne źródło ciepła

  • podgrzew wody - z własnego pieca elektrycznego

  • odprowadzanie wód opadowych – kanalizacja deszczowa / retencja / teren własny

  • opłaty administracyjne wpłacane na rzecz wspólnoty mieszkaniowej - zaliczka na utrzymanie nieruchomości wspólnej ok 7,4 zł/m2. 

  • światłowód

Zapraszamy do zapoznania się z prospektem inwestycyjnym
 

Dlaczego warto zamieszkać właśnie tu?

Kontakt z naturą - położenie w otoczeniu lasu i doliny Wisły sprawia, że poranny spacer czy aktywność na świeżym powietrzu stają się codzienną przyjemnością.

Przemyślane przestrzenie wspólne - na osiedlu zaplanowano alejki spacerowe, ławki oraz strefę dla najmłodszych.

Energooszczędność i nowoczesne rozwiązania – zastosowanie wysokiej jakości materiałów budowlanych oraz technologii przekłada się na komfort cieplny i niższe koszty utrzymania mieszkań przez cały rok. Nowoczesne budynki z windami zapewniają wygodny dostęp do wszystkich kondygnacji.

Dobra inwestycja - ustroń to miejscowość turystyczna i uzdrowiskowa, od lat ciesząca się dużym zainteresowaniem. Dzięki temu mieszkania w Leśnym Zakątku świetnie sprawdzają się nie tylko do zamieszkania, ale również jako inwestycja pod wynajem – sezonowy lub całoroczny.

Lokalizacja – wygoda i rekreacja - mieszkańcy mają szybki dostęp do najważniejszych punktów Ustronia: centrum miasta, sklepów, restauracji oraz infrastruktury rekreacyjnej. W pobliżu znajdują się szlaki górskie, stoki narciarskie i kolejka na Czantorię.

Dodatkowym atutem jest bliskość wylotu na drogę ekspresową, która umożliwia wygodny dojazd w kierunku Bielska-Białej, Katowic oraz granicy z Czechami. To idealne połączenie górskiego spokoju z dobrą komunikacją.

Zarządzanie nieruchomością:

Wychodząc naprzeciw potrzebom klientów zainteresowanych zakupem nieruchomości w celach inwestycyjnych, oferujemy kompleksowe zarządzanie najmem – zarówno długoterminowym, jak i krótkoterminowym. Zapewniamy profesjonalną obsługę, która pozwala właścicielowi czerpać korzyści z inwestycji bez angażowania się w bieżące sprawy. Po szczegóły zapraszamy do kontaktu – chętnie przedstawimy indywidualną ofertę.

Profesjonalne wsparcie w uzyskaniu kredytu hipotecznego – pomagamy w wyborze najlepszej oferty, przygotowaniu dokumentów oraz przejściu całego procesu kredytowego, aby zakup wymarzonej nieruchomości był prosty i bezstresowy.

Nota prawna

Opis oferty zawarty na stronie internetowej sporządzany jest na podstawie oględzin nieruchomości oraz informacji uzyskanych od właściciela, może podlegać aktualizacji i nie stanowi oferty określonej w art. 66 i następnych K.C.

Szczegóły oferty

Symbol oferty BESK-MS-60
Powierzchnia 45,07 m²
Powierzchnia balkonów/tarasów 15,90 m²
Liczba pokoi 2
Piętro parter
Rodzaj budynku nowe budownictwo
Technologia budowlana murowany
Standard
Liczba pięter w budynku 3
Stan lokalu do wykończenia
Okna nowe PCV
Instalacje nowe
Liczba tarasów 1
Gaz jest
Woda tak - miejska
Dojazd asfalt
Otoczenie las
Ogrzewanie podłogowe
Odl. do szkoły [m] 1 800 m
Odl. do przedszkola [m] 1 600 m
Winda tak
Liczba wind 1
Tarasy taras
Usytuowanie narożne
Drzwi antywłamaniowe tak
Przystosowania dla niepełnosprawnych tak

Pomieszczenia

Powierzchnia pokoi 38,13 m2
Podłogi pokoi panele
Rodzaj kuchni aneks kuchenny - połączony z salonem
Powierzchnia kuchni 27,13 m2
Podłoga kuchni panele
Liczba łazienek 1
Powierzchnia łazienki 4,09 m2
Podłoga łazienki gres
Liczba przedpokoi 1
Powierzchnia przedpokoi 2,85 m2
Podłoga przedpokoi panele

Lokalizacja

Kalkulator kredytowy

PLN
%
Wysokość raty

Kalkulator kosztów

PLN
PLN
PLN
PLN
PLN
PLN
%
PLN
Podatek od czynności cywilno-prawnych
Taksa notarialna (opłata notarialna)
VAT od taksy notarialnej (opłaty notarialnej)
Wniosek do WKW
VAT od wniosku do WKW
Prowizja agencji nieruchomości
VAT od prowizji agencji nieruchomości
Wypisy aktu notarialnego - około
RAZEM (cena + opłaty)

Uwaga: mogą wystąpić dodatkowe opłaty za założenie księgi wieczystej oraz ustanowienie hipoteki.

Podobne oferty

mieszkanie na sprzedaż - Ustroń

mieszkanie na sprzedaż

Ustroń
2 pokoje 43,15 m2 11 400,00 zł/m2
mieszkanie na sprzedaż - Ustroń

mieszkanie na sprzedaż

Ustroń
3 pokoje 55,80 m2 11 700,00 zł/m2
mieszkanie na sprzedaż - Ustroń

mieszkanie na sprzedaż

Ustroń
2 pokoje 44,80 m2 11 700,00 zł/m2
mieszkanie na sprzedaż - Ustroń

mieszkanie na sprzedaż

Ustroń
2 pokoje 46,24 m2 11 700,00 zł/m2

Napisz do nas

Proszę wypełnić to pole
Proszę wypełnić to pole
Proszę wypełnić to pole
Proszę wypełnić to pole
Trwa wysyłanie...

Ta strona wykorzystuje pliki cookies w celach statystycznych oraz w celu dostosowania naszych serwisów do indywidualnych potrzeb klientów. Zmiany ustawień dotyczących plików cookie można dokonać w dowolnej chwili modyfikując ustawienia przeglądarki. Korzystanie z tej strony bez zmian ustawień dotyczących cookies oznacza, że będą one zapisane w pamięci urządzenia.

rozumiem